土地活用のひとつの選択肢「アパート経営」。当社が手がけるアパート建築は、建築費用を抑えながら、利回りの良い賃貸経営を実現いたします。立地や周辺環境などを考慮し、健全なアパート経営につながるオリジナルのプランをご提案させていただきます。お気軽にお問い合わせください。
PLAN
1人暮らし・単身赴任などに最適なプランです。効率的な空間設計でプライバシーを守り、快適な共同生活を実現します。
1F
2F
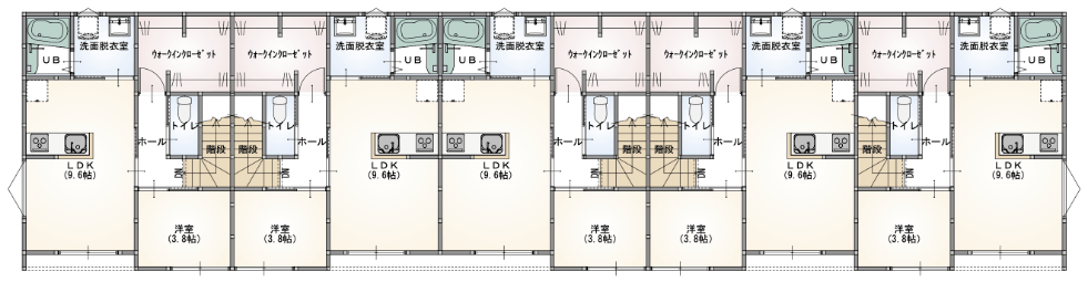
1人暮らし・単身赴任などに最適なプランです。計画に合わせた部屋数に対応できますので、お気軽にご相談ください。
1F
2F
1人暮らし・単身赴任などに最適なプランで、プライバシーを確保しつつ効率的な空間活用で快適な暮らしを提供します。
1F
2F
限られたスペースを有効活用して快適で機能的な住まいを実現できる点が魅力です。創意工夫を凝らした設計により、便利な立地を活かしながら、収納や生活スペースを最大限に確保し、暮らしに合わせた柔軟なプランニングが可能です。
1F
2F
戸建て賃貸は広々とした空間でプライバシーを確保し、家族のライフスタイルに合わせた快適な暮らしを実現します。
1F
2F
SPEC
外壁材は、化粧サイディングを採用
屋根材は、ガルバリウム鋼板を採用
断熱材は、グラスウール他
キッチンは、タカラ製品を採用
ユニットバスは、タカラ製品を採用
独立型洗面化粧台
トイレは、TOTO製品を採用
床材は、EIDAI製品を採用
ウォークインクローゼット、下足箱完備
WORKS
YIELD
月々の家賃収入
65,000円×10戸= 650,000円
年間の家賃収入
650,000円×12ヶ月= 7,800,000円
年間の家賃収入
7,800,000円
アパート建築費用
77,000,000円(税込)
利回り10.13%
- 地費用は含まれていません。
- アパート建築費用には別途、上下水道引 込み工事・外部配管・造成費用などが必要になります。
- アパート家賃には、共益費・駐車場費・ケーブルTV費は含まれておりません。
- 土地・アパート形状などにより、費用は変わります。
上記の利回りを保証するものではありません。
詳細見積もりに関しては担当者へお問い合わせ下さい。











